martes, 6 de septiembre de 2022

Valle del Boí: templos, aldeas fortificadas y paisaje.








Tengo que empezar diciendo que estas líneas han sido escritas después de realizar un viaje soñado al pirineo leridano, no sólo porque casi es obligado para alguien a quien le encanta el estudio del poblamiento histórico y el arte medieval sino porque en 1996, en el mes de diciembre, descubriendo las pinturas murales de San Miguel de Gormaz, en Soria, me di cuenta de que existía una conexión inequívoca entre los pintores del Boí y sus convencionalismos artísticos y los meseteños de Gormaz, San Baudelio y Maderuelo. Info   Más info


El pequeño valle del Boí 

El valle, enclavado en la comarca leridana de la Alta Ribagorça, es un espacio natural privilegiado en el que se encuentra el único parque nacional en territorio catalán, el de Aigüestortes y Estany de Sant Maurici, y que cuenta además con estaciones de esquí y fuentes de aguas minero-medicinales con propiedades terapéuticas conocidas, según se cree, ya desde tiempos de los romanos.




Visitar el Boí es encontrarse de lleno con una explosión de sinergias en un entorno natural espectacular que incluye unos bienes del patrimonio cultural de alto valor: edificios, tradiciones ancestrales, villas y templos reconocidos por la Unesco.

Es, sin duda alguna, conocido por un románico excepcional en su número, concentración, bienes y tipología, aderezado con un compendio de aspectos excepcionales, entre los que me gustaría destacar las iglesias conocidas como románicas que se han conservado a lo largo del tiempo con pocas modificaciones gracias al aislamiento del valle hasta bien entrado el siglo pasado.

La razón  para que en la Edad Media se erigieran toda esta serie de iglesias en una zona de escasa capacidad productiva agrícola y ganadera, con una economía de subsistencia, y, por tanto, con nulas posibilidades de detraer recursos para tantas obras edilicias, se hallaba en la situación estratégica, la guerra y  la voluntad de perpetuación de unos nobles, los barones de Erill, venidos a más por su relación con los reyes de Aragón, iniciada en tiempos de Sancho Ramírez y consolidada con sus sucesores Pedro I –quien les entregó el castillo de Zaidín, en el Bajo Cinca, en 1092 para la repoblación de su feudo– y Alfonso I el Batallador. 

Aunque la cronología de la secuencia constructiva de las nueve iglesias no ha sido establecida con precisión, sí hay una fecha, digamos que absoluta, sobre la que se ha ido perfilando la datación relativa del conjunto: 10 y 11 de diciembre de 1123, los días en que fueron consagradas, respectivamente, las iglesias de Sant Climent y Santa Maria de Taüll por el célebre obispo Ramón de la diócesis de Roda de Isábena, a la cual pertenecía el valle de Boí en aquel momento. Tomando como referencia esta fecha, grabada en una inscripción adosada a una de las columnas de la iglesia de Sant Climent, el resto se ha ido datando como ante quem o post quem, a partir de las diferencias estilísticas y constructivas respecto a las dos de Taüll, fechadas con exactitud. De todas formas, las variantes entre unas y otras son matices formales, ya que todas ellas comparten el mismo estilo constructivo, el llamado lombardo.

El éxito de las campañas militares emprendidas contra las plazas y poblaciones musulmanas por los monarcas aragoneses proporcionó a los Erill cuantiosos ingresos que invirtieron en la construcción de iglesias en el territorio del que eran feudatarios, como forma de cimentar su prestigio y evidenciar su dominio, al margen de asegurarles, cabe suponer, una excelente relación con las autoridades eclesiásticas. Así, podría decirse, utilizando un anacronismo actual, que el botín obtenido con la guerra fue sometido a una operación de “blanqueo espiritual” a través de la edificación de una serie de templos dedicados a la mayor gloria de Dios y de los señores de Erill, si bien hay que entender, claro está, que la guerra, y mucho más contra el infiel, era por aquellos tiempos no solo algo aceptado y bien visto, sino prácticamente preceptivo para cualquier cristiano que se preciara de serlo.

Como era habitual en la época, los constructores de los templos debieron ser talleres itinerantes de avezados maestros, artesanos y canteros que se desplazaban con su conocimiento, sus herramientas y su “saber hacer” a donde eran requeridos por los comitentes, algo que, por otra parte, ha permitido en algunos casos seguir las huellas de su “trayectoria profesional”. Pero si bien es cierto que las iglesias del valle de Boí presentan rasgos tipológicos y estilísticos que las entroncan con el canon de la época, como la planta basilical, los ábsides semicirculares, las cubiertas abovedadas o los característicos arquillos ciegos y las bandas lombardas, tienen algunos componentes en cierta manera específicos, como sus espigados y simbólicos campanarios, el más alto de los cuales, el de Santa Eulàlia d’Erill la Vall, alcanza los 23 metros de altura.

El conjunto románico de la Vall de Boí está formado por las iglesias de Sant Climent y Santa Maria de Taüll, Sant Joan de Boí, Santa Eulàlia d'Erill la Vall, Sant Feliu de Barruera, la Nativitat de Durro, Santa Maria de Cardet, la Assumpció de Cóll y la ermita de Sant Quirce de Durro.

Comencé con una inmersión en la historia medieval del Valle acompañada por la lectura de varios libros y de la visita al Centro de Interpretación del románico en la localidad de Boí. Como centro del románico es, desde un punto de vista expositivo,  algo extraño pero, aborda algunas cuestiones relacionadas con la historia del valle y tiene una web interesante.




https://viajes.nationalgeographic.com.es/a/arte-y-naturaleza-pirineo-leridano_6373

El conjunto románico.

Una de las características principales de los templos del Boí es la unidad de estilo arquitectónico. Se trata, como ya apuntaba, de construcciones realizadas durante los siglos XI y XII siguiendo los modelos provenientes del norte de Italia, el románico lombardo, que se caracteriza por la funcionalidad de sus construcciones, el cuidadoso trabajo de la piedra, los esbeltos campanarios de torre y la decoración exterior de arcos ciegos y bandas biseladas lombardas.

Las iglesias románicas del Valle de Boí son el reflejo artístico de una sociedad estructurada en torno a las jerarquías eclesiásticas y señoriales, personificadas en este caso en los señores de Erill y el obispado de Roda de Isábena, promotores de los templos del Valle, como apuntaba líneas más arriba. Dentro de esta sociedad medieval, la iglesia cumplía no sólo una función religiosa, sino que también tenía un importante papel social, como lugar de reunión y refugio del pueblo. En el caso del Valle de Boí, esta función social de los templos se evidencia en la utilización de sus esbeltos campanarios de torre como elementos de comunicación y vigilancia.

Excepcional es, de igual modo, la pintura mural que decoraba sus muros y pregonaba los preceptos y creencias del cristianismo, entre los que destacan, de un modo especial los de las iglesias de Sant Climent y Santa Maria de Taüll y Sant Joan de Boí, actualmente conservados en el Museo Nacional de Arte de Cataluña (MNAC), así como todas las tallas de madera producidas por el Taller de Erill, a destacar el Descendimiento de Santa Eulàlia d'Erill la Vall.

Se estima como mas antiguos de los ciclos pictóricos al de Sant Joan de Boí y los de Sant Climent y Santa Maria de Taüll, de los cuales, el primero sería el más antiguo –entre finales del XI y principios del XII–, y los dos de Taüll, contemporáneos el uno del otro, realizados alrededor de 1123 por el taller del conocido como Maestro de Taüll, un auténtico genio de su tiempo.

Todo este maravilloso legado quedó durante siglos en el más absoluto abandono y anonimato, tapado por capas de cal o retablos al uso de las distintas épocas, hasta que a principios del siglo XX, una misión arqueológica del Institut d’Estudis Catalans, dirigida por Josep Puig i Cadafalch, “redescubrió” aquel tesoro, deteriorado por el paso del tiempo, pero intacto.

Este reconocimiento mas que "descubrimiento” no solo sirvió para poner en valor el arte románico como patrimonio histórico-artístico, sino que también desató el interés de museos y coleccionistas de todo el mundo. Así, en el verano de 1919, el expolio de los frescos de la iglesia de Santa Maria de Mur, en el Pallars Jussà, que fueron vendidos al Museo de Bellas Artes de Boston por el coleccionista Lluís Planidura, hizo saltar las alarmas del peligro que se cernía sobre las pinturas del valle de Boí. Ese mismo año, la Junta de Museos de Cataluña inició una campaña de salvamento con el fin de ponerlas a buen recaudo, y fueron trasladadas al Museu d’ Art i Arqueologia de Catalunya, antecedente directo del Museu Nacional d’ Art de Catalunya, donde actualmente se exponen. Y no sólo las pinturas sino también las tallas del Calvario de Erill la Vall y el mobiliario, entre otros bienes.

Hoy en día, el estado de conservación de las iglesias del Vall de Boí es magnífico, gracias a la inversión que se ha realizado en rehabilitaciones y restauraciones, y, además, existe un centro de interpretación en Erill la Vall, y la posibilidad de ver en la iglesia de Sant Climent el impresionante video mapping Taüll 1123, uno de los mayores logros de los últimos tiempos en recuperación patrimonial, que ha cosechado premios en todo el mundo.

En el año 2000, todos estos templos fueron declarados Patrimonio de la Humanidad por la Unesco dentro del conjunto de las Iglesias románicas catalanas del Valle de Bohí y resulta curioso, no por el valor incuestionable de su patrimonio cultural sino porque se ha valorado la autenticidad de una forma relativa y excepcional, ya que, como  hemos apuntado e irán viendo a lo largo de esta exposición, la mayor parte de su arte mueble excepcional y sus pinturas murales románicas no se encuentran in situ y lo que hay son copias.


San Clemente de Tahüll.












Consagrada el 10 de diciembre de 1123 por Ramon Guillem, obispo de Roda-Barbastro, la iglesia de Sant Climent de Taüll se levanta sobre un templo del siglo XI. Es el prototipo de iglesia románica de planta basilical con las tres naves separadas por columnas y cubierta de madera a dos aguas, cabecera con tres ábsides y esbelto campanario de torre. La imagen del Cristo en Majestad de Taüll ha sido la imagen emblemática más utilizada para representar el románico catalán.

A pesar de los arranques, se han recuperado recientemente importantes fragmentos de pintura original románica conservados in situ y existe un nuevo proyecto museográfico que incluye la proyección mediante video mapping de las pinturas del ábside central. Este es un medio completamente innovador de restitución pictórica que aprovecha las posibilidades técnicas de reproducción virtual del video mapping para mostrarnos como sería la iglesia de Sant Climent de Taüll en el s.XII, presentando las pinturas integradas en la propia arquitectura del edificio.

Tres tallas románicas completan el conjunto de bienes muebles conservados en el interior del templo.

La datación se debe a una inscripción hallada en una de sus columnas, que se conserva en el Museo Nacional de Arte de Cataluña (MNAC):

ANNO AB INCARNACIONE

DNI: M: C: XX: III: III: IDUS: DBR

VENIT RAIMVNDUS EPC BARBASTRE

NSIS CONSECRAVIT HAC ECLESIA IN HONORE

SANCTI CLEMENTIS MARTIRIS ET PONENS RELIQUIAS

IN ALTARE SANCTI CORNELLI EPISCOPI ET MARTIRIS.

El año de la Encarnación

del Señor 1123, el 10 de diciembre

vino Ramón, Obispo de Barbastro

consagró esta iglesia en honor

de san Clemente mártir y puso relíquias

en el altar de san Cornelio obispo y mártir.

Su planta de basílica perfecta con tres naves contrasta bastante con la techumbre de madera, sustituida en la época por la bóveda de piedra y ladrillo. La decoración arquitectónica lombarda del exterior sitúa a la iglesia en una modernidad que se había extendido ya por las regiones italianas de Mantua y Verona.

Las naves convergen ligeramente hacia la cabecera y están divididas por tres columnas cilíndricas - asentadas sobre basa o sobre el pavimento direcatmente- cada una. En la parte superior están adornadas con un collarín de esquinillas, típica decoración lombarda, sobre todo de exteriores. Estas columnas carecen de capiteles y en su lugar están rematadas con ábacos muy sencillos, sobre los que se asientan los arcos. Sobre los arcos se eleva el muro, que tiene la suficiente altura para dar lugar a las dos vertientes del tejado. La cubierta es muy primitiva y rústica. Las vigas están superpuestas y tendidas de muro a muro sin atirantar, formando así una armadura central donde se distribuyen las otras vigas que sostienen el techo.

Los muros carecen de ventanas siendo sus únicos vanos las puertas: la meridional, la occidental y la que da acceso a la torre. Sólo se abren huecos en la cabecera que tiene un ábside central y dos laterales más pequeños, todos abovedados. En las arquerías y ventanas se observa una mejor y más cuidada labor de piedra tallada. El ábside central está decorado por grupos de cuatro arquillos ciegos, dobles, separados por medias columnas. Sobre ellos corre un friso de esquinillas como el que se ha visto en algunas de las columnas del interior. El tramo central tiene una ventana y sobre los laterales hay pequeños óculos. Los absidiolos también llevan la misma decoración lombarda, pero con grupos de tres arcos ciegos en lugar de cuatro. Tienen una ventana cada uno.

La iglesia estaba pintada originalmente con almagra, que la dotaba de un color rojizo

La torre campanario es de planta cuadrada y está exenta si bien se levantó junto al ángulo de los muros este- sur, junto a la cabecera. Es alta y esbelta, como todas las torres lombardas levantadas en el valle de Bohí. Corresponde al grupo de torres contemporáneas de las italianas edificadas en el siglo XII. Consta de cinco pisos  y en sus cuatro caras  se repite la decoración y  ventanas, cuyo número es variable. En la parte baja o zócalo hay una sola ventana más los cinco arquillos ciegos. En los restantes pisos cambia el número de ventanas, separadas por unas columnillas cuyos capiteles en forma de zapata están dispuestos perpendicularmente al muro de su torre. Los tres últimos pisos llevan a manera de imposta una decoración de esquinillas como la de los ábsides. En el piso superior hay incrustaciones de cerámica y colorido distinto de la piedra.

Las pinturas románicas del templo revistieron los muros del templo: naves, ábsides y columnas y si bien no se conoce el taller o autor de las mismas,  es reconocido en el mundo artístico como "maestro de Tahull", un artista de excelente formación y técnica al que, probablemente, le acompañaran miembros de su taller. 

En el  cascarón del ábside central , de 4 m de diámetro,  se representó el Pantocrátor  en la mandorla perlada, sentado en una franja transversal que está decorada con dibujos vegetales. A la altura de sus hombros están dibujadas las letras griegas Α y Ω, simbolizando a Cristo como principio y fin de todas las cosas. El Pantocrátor está en actitud de bendición con su mano derecha mientras que en la izquierda sostiene un libro abierto en el que puede leerse: Ego sum lux mundi/ Soy la luz del mundo.

Aparece vestido con una túnica gris  y un manto azulado. Sus pies desnudos, signo de divinidad, descansan sobre una semiesfera, fuera de la mandorla. Le rodean cuatro ángeles que llevan los atributos de los cuatro evangelistas, el Tetramorfo y dos serafines de seis alas en las que se han dibujado seis ojos.​La zona inferior muestra un fondo de tono azulado sobre el que están dibujadas las figuras de María y cinco de sus apóstoles bajo arcos rebajados que se apoyan sobre capiteles foliados, reconocibles por sus nombres. Excepcional es la figura femenina de María, tocada en blanco con un manto, que sostiene en su mano la copa con la  sangre de Cristo, el Santo Grial, una iconografía que la hace corresponder con María Magdalena.



https://www.museunacional.cat/es/colleccio/abside-de-sant-climent-de-taull/mestre-de-taull/015966-000

En el arco toral aparece el Cordero nimbado y con el dibujo de la cruz, en cuya cara vuelve a repetirse el símbolo de los ojos (como visión apocalíptica). En la clave del otro arco se pintó la mano divina que bendice saliendo de un círculo. 

En otra clave se conserva la figura del patriarca Jacob y la de Lázaro con su perro, a la puerta del rico Epulón.

Un frontal de un altar procedente de San Clemente de Tahull, obra del siglo XIII se conserva en el Museo Nacional de Arte de Cataluña. En el se desarrollaron escenas de la vida de este santo en dos franjas; la superior  con el santo convirtiendo a Teodora (en contra de la voluntad de su marido Sisinio, cortesano de Nerva) y la escena de la inventio de la fuente de la vida señalada por el Cordero, mientras en la franja  inferior se encuentran las escenas del juicio de Clemente ante el emperador Trajano y su martirio, junto a la representación del milagro del arca marmórea que emerge con el niño vivo después haber estado bastante tiempo encerrado. El marco y el fondo de la decoración son en relieve, sobre el estuco tendido sobre la madera.

No debemos pasar por alto el mobiliario excepcional conservado desde la plena Edad Media. El banco de madera tallada y calada destinado a nobles o eclesiásticos original fue también trasladado al MNAC, si bien en su lugar se instaló una copia exacta. Esta pieza es conocida como «banco de Taüll»  e es un mueble banco dividido en compartimentos, con respaldo, brazos y dosel, posee además tarima. La forma del banco es la de un asiento triple, con respaldo, dosel y tarima inferior con la función de apoyapiés. Los tres compartimentos asiento del mueble se hallan separados en su parte frontal (exterior) por dos piezas verticales en forma de columnillas, y en su parte interior, por tableros transversales que se ensamblan en finas columnas en la parte frontal y en pequeñas pilastras unidas a la trasera (respaldo) del mueble. Estos tableros transversales sirven de elementos de separación entre los asientos, y pudieron servir igualmente como brazos de los mismos. La parte superior correspondiente a dichos tableros la constituyen dos arcadas geminadas en herradura; una pilastra moldurada en tramos separa las dos arcadas.

A un alto zócalo, que conforma la dimensión en altura del asiento, se han ajustado cuatro piezas montantes14: las delanteras de sección circular en las dos terceras partes intermedias (a modo de columna sobre plinto y coronada por un fragmento de entablamento); las traseras de sección prismática (a modo de pilares).

En la zona frontal, entre los dos montantes laterales, corre un friso estructurado en tres arcadas de medio punto y con decoración de ajedrezado en el perímetro de su rosca. La arcada central apoya en las dos columnillas verticales que actúan de elemento separador del mueble. La parte superior del friso está recorrida por una seriación de arcadas ciegas.

Sobre el friso discurre una crestería en la parte frontal y lateral derecha (siempre según el espectador); en el lateral izquierdo, en cambio, se ha dispuesto una pieza maciza ornada con motivos incisos. En los extremos, dos piezas montantes prismáticas rematadas por florones acogen la crestería. En el lateral derecho, otra pieza prismática con la misma función de montante acoge la crestería lateral.

Los dos costados del mueble lo conforman dos piezas en talla calada que ensamblan con los montantes traseros y delanteros o frontales. La trasera del mueble es lisa, formada por una serie de tablones (7 en total) lisos y dispuestos verticalmente, ajustados entre sí y armados por dos largueros15 horizontales en los extremos superior e inferior.

El mueble así conformado resulta de estructura sencilla que ofrece, en altura y anchura, unas proporciones rectangulares y una variada y rica ornamentación en talla que describiremos a continuación.

Todo el mueble apoya sobre una tarima conformada por dos gruesos travesaños y un larguero horizontal unido a los mismos por la parte delantera y otro por la parte trasera del mueble.


https://www.museunacional.cat/es/colleccio/banco-presbiteral-de-sant-climent-de-taull/anonim/015898-000


Banco de Taüll. Estado de conservación actual. MNAC/MAC 15898.


Fue construido en madera de pino y sus dimensiones son de 261 x 170 x 61 cm. Técnicamente, un apartado más complejo es el que corresponde al tipo de ensambles utilizados entre las diferentes piezas que han configurado el mueble.
A nivel parcial y fragmentario sí subsisten paralelos reales para el banco de Taüll. Me refiero a los dos fragmentos conservados en la iglesia de la Natividad de Durro, muy similares en forma y disposición a los motivos ornamentales que figuran en el panel del costado lateral izquierdo del banco de Taüll. Los dos fragmentos a los que me refiero forman, hoy,  parte del respaldo de un banco de factura muy posterior a la época que tratamos.
Los fragmentos de panel ornamentado a base de motivos en la técnica de talla calada aparecen enmarcados en piezas montantes y travesaños de época muy posterior a la que nos ocupa.
Se ha podido constatar que en el Arxiu Mas se conserva una fotografía en la que aparecen dos fragmentos de panel igualmente realizados en talla calada con motivos muy similares a los que figuran en los costados del banco de Taüll y también del banco de Durro. Los dos fragmentos aparecen enmarcados en piezas de datación muy posterior a la época que nos ocupa, semejantes a los que enmarcan las piezas del banco de Durro.
Un análisis detenido de estos dos últimos fragmentos ofrece como resultado que el panel derecho (según la fotografía) es exactamente el mismo que el que en la actualidad constituye el panel izquierdo del banco de Durro, pero los montantes y travesaños que hoy enmarcan el de Durro no son los que aparecen en la fotografía, aunque sí similares.
El panel izquierdo contiene motivos ornamentales similares a los que se hallan en el costado lateral derecho del banco de Taüll.



Fragmentos de paneles similares a los que figuran en el banco de Durro  y en el costado lateral derecho del banco de Taüll. El panel izquierdo de la fotografía es el mismo que el panel izquierdo que figura en la actualidad en el banco de Durro.
En el reverso de la fotografía se indica: «1907. Barcelona museo Arte Cataluña. Banco de Tahull» (cliché Instituto Amatller de Arte Hispánico núm. MB-2054).


Banco hallado en el coro de la iglesia de la Natividad de Durro, en cuyo respaldo constan dos fragmentos de paneles calados, muy similares a los que figuran en los paneles de los costados laterales del banco de Taüll.


Celina Llarás Usón ,  afirma que desde la técnica y el ornamento, se trata de un mueble rico en un repertorio de tradiciones medievales, sólo que valoradas aisladamente no son coincidentes, no tienen lógica. Debe valorarse como un mueble único, puesto que no hay conocimiento testimonial ni manifiesto de otro mueble similar. Ese «único» debe entenderse no desde una perspectiva histórico- estilística ni histórico-artística específica. Insiste en la condición del mueble banco de Taüll como un mueble realizado utilizando diversas piezas de otras construcciones, algo constatable en la existencia de piezas semejantes (a las de los dos costados li.6 y ld.9) en otras construcciones halladas (banco de Durro) o perdidas de un taller local, que está inspirándose en unos motivos ornamentales que forman parte de su entorno arquitectónico histórico y conocido: las iglesias románicas de Taüll, sus campanarios, más específicamente, su ornamento en arcadas ciegas, dientes de sierra, ajedrezados…, constituyen los motivos ornamentales que figuran en las piezas frontales del mueble. Sostiene que el banco de Taüll es una construcción contemporánea fruto de un reajuste de piezas diversas que resultan aisladas, descontextualizadas.


https://www.museunacional.cat/es/colleccio/pinturas-de-sant-climent-de-taull/mestre-de-taull/015966-cjt


Santa María de Tahüll







Santa María es un edificio de planta basilical realizado en sillería, con tres naves separadas por pilares circulares que sostienen los arcos formeros de medio punto de las mismas, rematadas en su parte oriental con una cabecera formada por tres ábsides semicirculares. De los tres es el central el que presenta un tamaño mayor al tener un tramo recto precediéndole, siendo los laterales de dimensiones más reducidas. Esta cabecera tripartita se construyó siguiendo patrones de edificación lombardos, estando realizada en sillarejo de buena calidad dispuesto a soga y tizón.
En cuanto a las cubiertas, las tres naves presentan techumbres de madera. El templo presenta dos puertas; así, la entrada al mismo se realiza por los pies del mismo, es decir, por el lateral oeste, a través de una sencilla puerta con arco de medio punto que no presenta decoración. Presenta una segunda puerta, similar a la citada, pero algo más estrecha, en el lateral sur del edificio.

Al sur, integrada en la planta del edificio, sin adosarse a la fachada, se encuentra la torre del campanario que tiene planta cuadrada y en altura se divide en cuatro pisos, quedando la base de la torre en el interior del templo, ocupando el tercer tramo de la nave sur del edificio. Su construcción parece que data de la segunda mitad del siglo XI, por lo que sería anterior a la erección del templo, cuya consagración se realiza en el siglo XII. Está realizada en aparejo algo menos refinado que el del resto del edificio. Por tanto, parece que la torre-campanario pertenecería a un edificio anterior que, en el siglo XII, fue sustituido por el actual conservando en el proyecto la torre.

La torre presenta en todas las plantas vanos de iluminación, realizándose la separación entre los niveles por medio de una serie de arquillos ciegos y frisos de dientes de sierra en la parte superior de la torre. En el nivel más inferior se abre una ventana sencilla a cada uno de los lados, mientras que en el resto de niveles del campanario las ventanas son geminadas. El fuste de la columnilla central de éstas es prismático y se remata por medio de capiteles mensulados.
Al exterior, el templo presenta la típica decoración del primer románico catalán, de influencia lombarda, a base de bandas y arquitos ciegos. 

El ábside central está decorado con cuatro lesenas en el centro que dividen el muro en cinco paños y dos en los extremos del mismo, rematándose cada uno de los cinco lienzos en arquerías ciegas de dos arquillos lombardos ultra semicirculares que se apean en ménsulas y que están embarcando cada uno de ellos a un vano circular ciego abocinado u óculo. La parte superior la decoración se realiza por medio de un friso a base de dientes de sierra, ornamentación típica de las iglesias románica del Valle del Boí.
Además, en tres de los cinco de los paños del ábside central se abre una ventana aspillerada rematada en arco de medio punto, dejando pasar la luz solamente el vano situado en el paño central, pues los otros dos quedan cegados debido posiblemente a la falta de espacio para realizar los frescos que se localizan en el interior del templo. Además, es este el único vano, más alargado, el que está bien centrado en su lienzo. Por su parte, los dos ábsides laterales, si bien siguen los mismos criterios que el central en cuanto a la decoración, presentan una diferencia con éste, y es que la ventana en cada uno de sus muros está descentrada en el lienzo, y aumenta el número de arquillos entre lesenas a tres.
Conviene señalar también que estas partes del templo presentan una diferencia con respecto al material de fabricación, ya que los arquillos ciegos y los arcos de las ventanas están realizados en piedra volcánica toba.

Al interior, debido a las grandes reformas que hemos señalado que sufrió el edificio sobre todo en el siglo XVIII, no se ha conservado su aspecto original. Los tres ábsides están cubiertos mediante bóvedas de cuarto de esfera, si bien el central presenta una diferencia con el resto al estar precedido de un tramo recto, dividido en dos pequeños cuerpos que se delimitan por dos arcos de medio punto, cubierto por una bóveda de medio cañón. El resto del templo se cubre con techumbres de madera a doble vertiente con tejado de pizarra.






Pero, sin duda, lo que más destaca en el interior de este edificio son las extraordinarias pinturas murales en fresco que se encontraban decorando sus muros. Los originales de las mismas se localizan actualmente en el Museo de Arte Nacional de Cataluña, conservándose in situ en el templo actualmente reproducciones de algunas de las pinturas más representativas. 
Como hemos señalado, el templo, al igual que el de Sant Climent, estaba decorado con extraordinarias pinturas murales realizadas en fresco. En 1907, la denominada Misión Arqueológica-jurídica a la raya de Aragón, del Instituto Catalán, visitó esta iglesia dentro de su plan de proteger el patrimonio artístico catalán. Tras algunos años, este equipo, entre los que se encontraba Josep Puig i Cadafalch, decidió despegar las pinturas, siendo levantadas entre 1919 y 1923 de los muros del templo para llevarlas al Museo Nacional de Arte de Cataluña, donde actualmente se encuentran. Esta medida se llevó a cabo ante el peligro que corrían los frescos de ser vendidos, teniéndose constancia de que uno de los frescos, con una representación de María, se conserva desde el año 1935 en el Museo Fogg Art de la Universidad de Harvard, en USA.
No se sabe la cronología exacta de realización de las pinturas, si bien son contemporáneas a las de Sant Climent -las de Sant Climent, estilísticamente no pueden ser atribuidas a ese maestro, por lo que serían obra de otro autor distinto al de las de Santa María-, y parece que trabajarían en torno a 1123, cuando se consagran ambas. En cuanto a la autoría de las pinturas de Santa María, los investigadores están de acuerdo en atribuirlas a dos maestros diferentes, que trabajarían contemporáneamente: el denominado Maestro de Santa María y el Maestro del Juicio Final. Las pinturas del templo están todas ellas realizadas empleando la técnica del fresco  y presentan una clara influencia bizantina.

Las que más destacan, y que sin duda son las más conocidas, son las que se sitúan en el ábside. En este fresco se representa a la Maiestas Mariae y la Epifanía, bajo la cual, enmarcados mediante arcos, se representan los apóstoles. La escena presenta a la Virgen con el Niño sobre sus rodillas, uno de los más habituales de la iconografía románica, que proviene de la iconografía bizantina en su derivación de la Virgen Kiritissa. Se trata de la virgen María representada como trono de su hijo Jesús, envueltos ambos en una mandorla asimétrica. Así, Cristo presenta en su mano izquierda el pergamino de la Ley, mientras que con la mano derecha realiza la señal de bendición.
A ambos lados se sitúan los tres Reyes Magos, Melchor a la derecha, Gaspar y Baltasar a la izquierda, los cuales están realizando la entrega de ofrendas con las manos veladas a modo de señal de respeto hacia el hijo de Dios. En el centro de la bóveda de esta zona del templo, se muestra el Agnus Dei. Sobre la escena se representan las dos estrellas, siguiendo de esta manera el relato evangélico.







En este fresco de Santa María de Taüll se pueden apreciar las características principales de la pintura románica. Así, se observa el empleo de la perspectiva jerárquica (mayor tamaño en función de la importancia del personaje), siendo representados los Reyes Magos a un tamaño inferior que el de la Virgen con el niño, la cual aparece desproporcionada en tamaño con el objetivo de destacar su importancia con respecto al resto de personajes, que son secundarios en la escena. Los colores son planos y vivos, destacando el empleo del rojo y el azul. Se marcan los contornos de las figuras en un trazo grueso en negro, y los campos cromáticos también se delimitan. Es destacable la introducción de una novedad técnica con respecto a la pintura románica del momento y es que si bien no hay empleo de recursos lumínicos, en los pliegues de los vestidos de los personajes y en algunas partes de manos y caras se observa un ligero intento de efecto de claroscuro. Por otra parte, las figuras son frontales e hieráticas, sin expresión, movimiento ni volumen, característica típica de la pintura románica de clara influencia bizantina y que pretende recalcar la idea de divino de los personajes, que están alejados del mundo de aquellos que están observándoles.
En un registro inferior, en el tramo recto que precede al ábside, bajo una galería de arcos, en el intradós del arco triunfal mayor, se representan a los cuatro evangelistas: San Pedro, San Pablo, San Andrés y San Juan. Cada uno de ellos porta sus atributos característicos: las llaves, el libro, la cruz y el libro, respectivamente. Acompañando a estos personajes, varios ángeles y arcángeles. Los apósteles son organizados en el fresco utilizando el recurso de la arquería simulada o arquitectura pintada. Para separar la zona con el fresco de la Maiestas Mariae-Epifanía y la de los evangelistas, se pinta una cinta con un motivo geométrico de zig-zag. Bajo estos dos niveles de frescos, encontramos un tercer registro en el que se representan escudos de forma circular o clípeos asociados a un bestiario fantástico. El nivel más inferior está compuesto por la representación de una serie de cortinajes.
Los fondos de todo el conjunto pictórico, al igual que los episodios principales, presentan vivos colores, y están realizados a base de bandas horizontales que recuerdan a las ilustraciones de los beatos mozárabes, contemporáneos en cronología.
Si bien los frescos de la zona del ábside son los más importantes, por su majestuosidad y su calidad, en el resto del templo también podemos encontrar pinturas. Éstas, según los investigadores no son de la misma autoría que las del ábside, sino de un segundo maestro al que la bibliografía denomina Maestro del Juicio Final, y presentan una calidad técnica inferior. La escena que más destaca es la del Juicio Final, de la que si bien el centro ha desaparecido se pueden apreciar varios fragmentos: en la parte superior observamos un grupo de hombres que caminan hacia Cristo, si bien éste último ha desparecido. También se observa en el nivel inferior a San Miguel, que aparece a la izquierda pesando las almas. 
En el muro sur del templo, aunque peor conservados, se localizan algunos fragmentos pictóricos, destacando en esa zona la escena de David matando a Goliat.

Si bien se afirma que las pinturas de Santa María de Taüll no presentan la grandiosidad de las de su vecina Sant Climent, entiendo que las comparaciones no son el objetivo y que, en cualquier caso,  son un ejemplo extraordinario de pintura románica, fundamentalmente en el ábside del templo. 
Si bien los originales de éstas no se localizan actualmente en el edificio, la iglesia es de visita obligada, tanto por su localización como por tratarse de uno de los mejores ejemplos del románico catalán.



San Juan de Boí





https://magicospirineos.com/boi-vall-de-boi





Está considerada como la más antigua de las iglesias lombardas de esta zona, ya que ha sido documentada desde el año 1079 y es una de las más apreciadas del románico de esta comarca leridana. 
Es el templo que conserva el mayor número de elementos arquitectónicos del primer momento constructivo que se produce en la Vall de Boí, en el siglo XI.
En Sant Joan de Boí, de planta basilical (como Sant Climent y Santa Maria), destaca el conjunto de pinturas murales que se encontraron decorando el interior de las naves con escenas como La lapidación de San Esteban, Los Juglares o el Bestiario.






























Exposición de las pinturas murales de San Joan de Boí en el MNAC


En la última restauración se quiso dar a la iglesia un aspecto lo más similar posible al que debía tener en el siglo XII; con este objetivo, se enfoscó el interior y se hicieron copias de todos los fragmentos de pintura mural conservados actualmente en el Museo Nacional de Arte de Cataluña.

Es aquí donde mejor podemos entender qué función desempeñaban las pinturas y cuál era el aspecto original de estas iglesias.

Inicialmente era semejante a las restantes del valle, con sus tres naves y cabecera de tres ábsides escalonados con arquerías y lesenas, y una esbelto campanario. Sin embargo, las ruinas y reformas se cebaron más en este edificio que en el resto del grupo, modificándose en el siglo XVIII el ábside central semicircular por otro rectangular, transformando las naves laterales en capillas tabicadas con muros para sostener una cubierta de piedra en sustitución de la techumbre de madera, la torre perdió los pisos superiores y se añadió un tramo de otro estilo, se ha perdido el pórtico que protegía la portada sur, y en 1919 y 1923 se arrancaron las pinturas murales para trasladarlas al MNAC. En la actualidad el interior del templo se ha restaurado a su estado inicial y se han reproducido las pinturas murales.

Conserva en su interior una pila de aceite (en catalán piques d’oli o piles d’oli) que son recipientes de piedra que se utilizaban en las iglesias del Pirineo Catalán, en el siglo XII, para guardar el aceite para las lámparas donado por los feligreses. Con frecuencia son rectangulares y en ocasiones están decorados con distintos motivos. En este caso es circular de tendencia oval.
 

En el siglo XI, Boí era la población más importante de la zona, contaba con un castillo, un recinto amurallado y la iglesia de San Joan, y ha dado su nombre al valle que recorre el río Noguera de Tor.








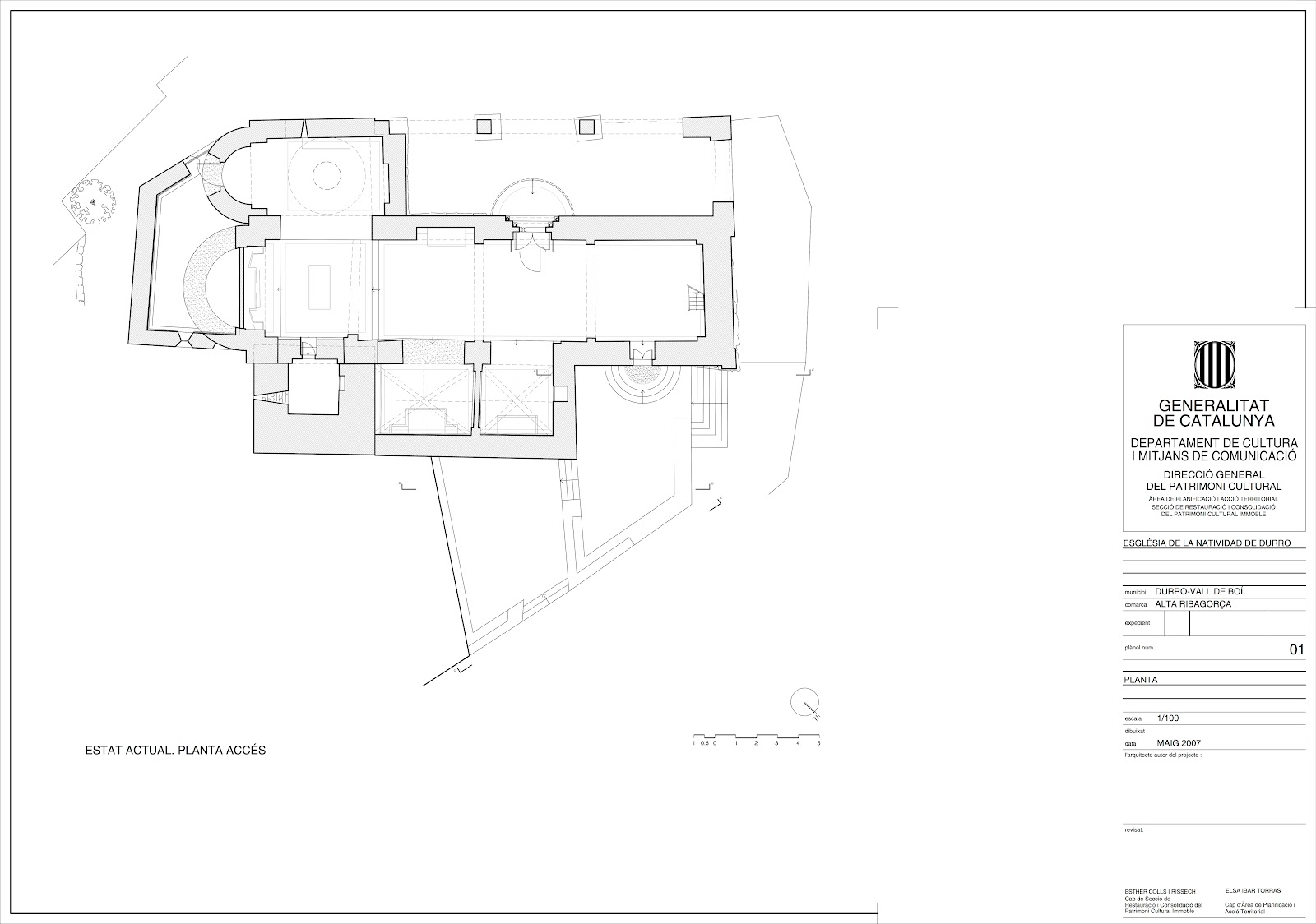
La Natividad de Durro








La monumentalidad de la iglesia de la Nativitat atestigua la importancia del pueblo de Durro durante la Edad Media. Destacan las grandes proporciones de la nave, el campanario, la portada esculpida y el pórtico.

Entre los siglos XVI y XVIII el templo románico se remodeló en varias ocasiones. Estas transformaciones aportaron al templo nuevos espacios, como las dos capillas góticas o la sacristía barroca.

En el interior de la iglesia se expone la imagen románica de Nicodemo, que originariamente formaba parte de un conjunto del Descendimiento de la Cruz.





San Quirce o Quirico de Durro








La planta de este pequeño templo sitiado a gran altura es de una sola nave cerrada con bóveda de cañón, que termina en un ábside abovedado.
En todo el edificio sólo se abren tres vanos; una ventana en forma de aspillera en el centro del ábside, un óculo pequeño en ese mismo lugar y una pequeña ventana en  el muro oeste. La puerta de acceso, en el paramento sur, es un arco de medio punto con dovelas muy toscas. 
Un altar románico decorado con pintura sobre tabla, dedicado a Santa Julita y San Quirce, se hallaba en su interior y hoy, el frente del mismo se custodia y exhibe en el Museo Nacional de Arte de Cataluña. Esta pieza tiene características comunes a las pinturas de las iglesias de Tahull y Bohí y las de Santa María de Valencia de la Vall d´Aneu. 
Representa, en diferentes registros, el martirio de Santa Julita y su hijo San Quirce o Quirico.
En el lugar central, de forma preferente, enmarcada en mandorla, aparece la santa con su hijo en brazos, ambos nimbados. Hacia el exterior de la mandorla el espacio aparece dividido en cuatro escenas, situadas dos a cada lado. 
A la izquierda, en el registro superior, dos verdugos, cortan a la santa, representada desnuda de cintura para arriba, con una sierra, mientras en la zona superior derecha se representa la continuación de la tortura con los verdugos clavando, a martillazos, unas puntas en su cabeza.
En la zona inferior continúa la narración pictórica con dos escenas de martirio con espadas, con la santa resistiendo los embites aún en pie y finalmente, abajo, a la izquierda Santa Julita y su hijo aparecen dentro del caldero hirviendo mientras las estilizadas figuras de los verdugos tratan de sujetarles con sus espadas. 
En todo el marco del frente de altar aparece  una cenefa pintada con motivos geométricos y vegetales.


https://www.museunacional.cat/es/colleccio/frontal-de-altar-de-durro/anonim-catalunya/015809-000




Iglesia de Santa Eulalia, en Erill la Vall










Este templo tiene una única nave alargada  rematada en un ábside y, en origen, se cubrió con bóveda de cañón. En el crucero se sitúan dos absidiolos que le proporcionan una planta trícora o trilobulada.

La puerta de acceso se abre en el paramento norte mediante un arco de medio punto con dovelas que conservan restos de pintura en el intradós. 
Tres ventanas se abren en los muros norte y sur y en el ábside respectivamente.

En Santa Eulàlia encontramos uno de los mejores campanarios de la Vall de Boí, una esbelta torre de planta cuadrada y seis pisos de altura con la decoración propia del románico lombardo:  arquillos ciegos y los frisos de diente de sierra.

Alineado con el de Sant Joan de Boí y el de Sant Climent de Taüll, el campanario desempeñaba la tarea de comunicación y vigilancia del territorio.

Todo apunta a que la torre, muy esbelta, de seis pisos divididos por impostas de arquillos ciegos y esquinillas, como corresponde a la decoración lombarda, es posterior. Al lado de la torre se levantó, en el costado norte, un pórtico, con arcos de medio punto apoyados sobre columnas.
En el coro de la iglesia se ha habilitado un espacio donde se muestra en exposición permanente piezas interesantes de la construcción, aparecidas durante la excavación.

La iglesia de Santa Eulalia contó en su origen con un grupo escultórico en madera de álamo policromada que representa el Descendimiento de la Cruz de Cristo. Las tallas que conforman este grupo fueron descubiertas en 1907, identificándose a Cristo, José de Arimatea, Nicodemo, los dos ladrones y María con Juan el Bautista. El conjunto, datado en el siglo XII, responde a un momento de gran florecimiento de la imaginería. Se afirma que más de la mitad de estas escenas en bulto redondo talladas y policromadas se encuentran entre los condados de Pallars, Ribagorza y Urgel y muchas de ellas se deben al patronazgo y supervisión de los barones de Erill, siendo obispo de Roda de Isábena San Ramón (1104-1126), precisamente cuando se pintan los muros de las iglesias de Tahüll. 
El grupo se encuentra custodiado y exhibido en el Museo Episcopal de Vic salvo San Juan y la Virgen María, que se encuentran en em MNAC.







https://www.museunacional.cat/es/colleccio/san-juan-del-descendimiento-de-erill-la-vall/anonim/003918-000


https://www.museunacional.cat/es/colleccio/virgen-del-descendimiento-de-erill-la-vall/anonim/003917-000




Junto con el Descendimiento de Erill-la-Vall se conservan otras tallas procedentes de distintas iglesias del valle de Boí, como el descendimiento incompleto y más pequeño, proveniente de Santa María de Taüll, la imagen de gran tamaño representando a la Virgen de Tahüll, el Descendimiento de la iglesia de Durro, la imagen de san Juan Evangelista de Durro y el Frontal del Pantocrátor de Santa María de Taüll, además del ya mencionado de Sant Julita y Quirico de Durro.



La iglesia de la Asunción de Coll

















La iglesia de la Assumpció de Cóll tiene características propias que la diferencian de las otras iglesias de la Vall de Boí tanto en los materiales empleados en su construcción, como en el tamaño de los sillares o los elementos decorativos de la portada, tiene un arco de medio punto con dos arquivoltas abocinadas que descansan en sendas columnas con capiteles decorados. La arquivolta externa  se decora con un friso ajedrezado sobre el que destaca un crismón. Los capiteles exteriores se decoran con motivos vegetales de palmetas mientras que los interiores representan hombres y animales  enfrentados, que se interpretan como la lucha entre el bien y el mal. 
Es de estilo románico, levantada en el segundo tercio del siglo XII si bien posee aportaciones góticas.
Tiene una sola nave cubierta con bóveda de cañón reforzada por dos arcos torales que descansan en apoyos sin capiteles, un ábside semicircular rematado con bóveda de horno, una cubierta a dos aguas realizada con losas de pizarra y un campanario de planta cuadrada y cuatro pisos que se remata con un chapitel al que se accede desde el exterior mediante una escalera de piedra. 
Tiene dos capillas, una en la base del campanario comunicada por un arco ojival, y otra en la fachada norte, también de planta cuadrada, y cubierta con bóveda de cañón. 
El coro es de estilo gótico.

El cerrojo de la puerta, semejante al de otras iglesias del valle, es de forja medieval y tipología románica y termina en forma de cabeza de animal. 

En el interior de la iglesia todavía se conservan las tres pilas románicas: la pila bautismal, la pila del agua bendita y la pila del aceite.



Santa María de Cardet





Este pequeño templo conserva uno de los ábsides más espectaculares de la Vall de Boí. Edificado sobre la pronunciada pendiente de la montaña, se aprovechó el desnivel del terreno para construir una pequeña cripta en el interior, la única de todo el conjunto de iglesias del valle.

A diferencia del resto de iglesias de la Vall de Boí, su campanario es una espadaña barroca.

En la última restauración se ha querido mantener el interior de la iglesia tal como era a principios del siglo XX.

El frontal de altar románico de Cardet se encuentra custodiado y exhibido en Museo Nacional de Arte de Cataluña. Conserva, excepcionalmente, en el marco in­ferior, restos de la firma de su autor, un pintor llamado Juan («Iohannes»). Junto con el frontal de Gia es obra de un taller activo en la Ribagorza, que incorpora ciertas fórmulas del primer gótico, como el ímpetu narrativo o la ma­nera sutil de iluminar los rostros. También es típica de este taller la decoración con relieves de yeso de toda la superfície de los frontales, que se cubrían con corladura para obtener los característicos fondos dorados.

https://www.museunacional.cat/es/colleccio/frontal-de-altar-de-cardet/iohannes-taller-de-la-ribagorca/003903-000






San Feliú de Barruera











Este templo alberga elementos arquitectónicos de los dos grandes momentos constructivos presentes en la Vall de Boí: los siglos XI y XII. Las diferencias edilicias de cada momento son reconocibles en los dos ábsides que conserva la iglesia: el ábside del siglo XI, decorado con arquillos ciegos, bandas lombardas y con un aparejo irregular muy diferente de los sillares del ábside del siglo XII.

Las remodelaciones de la iglesia y los bienes muebles que se conservan en su interior son una muestra de la adaptación de estos templos del valle  a los gustos y a las necesidades de la comunidad que los ha utilizado desde el siglo XII hasta nuestros días sin interrupción.




Los cerrojos románicos de las iglesias del Boí

La cerrajería románica conservada en los templos del valle del Boí es interesantísima, además de una obra de arte y casi un milagro por su conservación asociada a los cierres de madera de las puertas.
Las piezas de forja de hierro poseen elementos comunes llamando poderosamente la atención la decoración de los pasadores con motivos geométricos y cabezas de animales rematando el vástago.



Cardet







Coll





La experiencia de vivir este valle es maravillosa. Combinar las visitas a templos, pueblos y fortalezas con el senderismo, un acierto. No duden en completar su estancia con darse un buen garbeo por la zona del Planell d´Aiguestortes y L´Estani Llong, las Caldas de Boí y el pantano de los Caballeros si son principiantes, como yo.
Junto a la iglesia de San Joan, en Boí, disponen de un servicio de todoterreno para entrar en el Parque Natural de Aiguestortes y subir al Planell para  caminar por los lagos.



En cuanto a los alojamientos, optamos por hacerlo en Tahüll, otro gran acierto, en el Hotel Rural San Climent. Buen precio, buen trato, excelente cocina, cómodo y con unas vistas magníficas al templo.

Las distancias de recorrido para visitar los templos son cortas pero las carreteras, para una castellana de llanuras y caminos rectilíneos, no son fáciles. Atención a las curvas sobre todo si llueve.

Para preparar la visita es importante tener en cuenta los servicios que se ofertan, relacionados directamente con la temporada en la que realicen su viaje. Es aconsejable dirigirse al Centre del Romànic de la Vall de Boí  donde se ofrece información práctica para visitar las iglesias con un servicio de visitas guiadas durante todo el año mediante reserva previa (en catalán, castellano, francés e inglés), un servicio de visitas guiadas para el público en general , en horario predeterminado durante los meses de verano, Semana Santa, puentes y fines de semana. De igual modo se encuentran folletos de información del conjunto románico, horarios de apertura, venta de entradas conjuntas, así como una tienda con publicaciones especializadas en románico y patrimonio cultural, artículos de regalo.

Centre del Romànic de la Vall de Boí 
C/ del Batalló, 5. 
25528 Erill la Vall (la Vall de Boí) 
Tel. 973 69 67 15 
info@centreromanic.com






https://www.trotajoches.com/2020/08/ruta-iglesias-romanicas-vall-de-boi.html


Ya que andábamos por el pirineo leridano nos acercamos al Monasterio de Santa María de Obarra y  Roda de Isábena, en la Ribagorza Oscense, pero muy cercanos, aunque esa es otra historia. 

Nos quedamos con ganas de conocer de primera mano la maravillosa fiesta de les Fallas, que se celebra en sesenta y tres pueblos de los Pirineos y Pre-Pirineos (34 de Francia, 17 de Cataluña, 9 de Aragón y 3 de Andorra) ha sido declarada como Patrimonio Inmaterial de la Humanidad por la UNESCO con el título, "Las fiestas del fuego del solsticio de verano en los Pirineos: "Falles, Haros i Brandons".
La fiesta de las Fallas ha sido desde tiempos remotos una tradición arraigada en los pueblos de la Vall de Boí. Cada año, anteriormente con el inicio del solsticio de verano, actualmente coincidiendo con la fiesta mayor, los pueblos de la Vall de Boí corren las fallas, una fiesta relacionada con el culto al sol, dando gracias a los dioses por las cosechas recibidas y ahuyentando a los malos espíritus.

Les Falles son una antorcha hecha de madera resinosa de unos dos metros de largo, que se hacen con trozos de tea de pino enganchados a un palo de fresno con alambres y puntas.

¡Que pasen una buena semana!



Bibliografía: 

AA.VV. El Valle de Boí, Mil años de arte románico, Editorial Llibres de Matrícula, 2009. Coordinación científica: Centre del Romànic de la Vall de Boí.

Catalunya Romànica, vol. XVI, Ribagorça. Enciclopèdia Catalana, 1996.

Catalunya Romànica, Guies Comarcals, num. 7, La Ribagorça, Editorial Pòrtic, 2000.

Castiñeriras Manuel; Camps, Jordi. El románico en las colleccions del MNAC, Editorial Lunwerg,
2008.

Llarás Usón, C. LOCVS AMOENVS 4, 1998-1999 107-126